Refine Search
Location
Radius
Min Beds
Min Price
Min Price
Max Price
Max Price
Location
Radius
Min Beds
Min Price
Min Price
Max Price
Max Price
 

Livingstone Road, Southsea

Available

£799,995

4
3
2
Gallery (38)

Summary

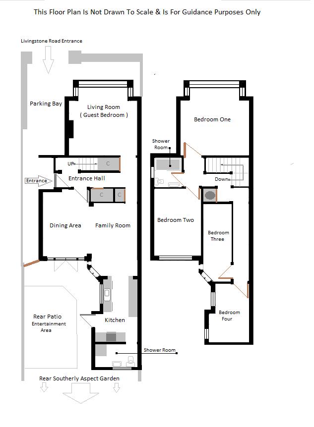
Located with in the requested conservation area of Central Southsea this post war, circa 1958 semi detached house has been modernised by the present owners blending period architecture with contemporary styling offering a modern open plan family living space with a high emphasis on family entertainment. The accommodation offers to the ground floor a front reception room ( presently utilised as a guest bedroom ) dining room with direct access and views of the garden, the room is open plan to the family room which is in-turn open plan to the modern fitted kitchen. Ground floor shower room serving this level and a first floor shower room serving the four upper floor double bedrooms.. Features include off road parking for one to two cars and side pedestrian access to the rear landscaped southerly aspect mature garden. The property can be offered with vacant possession. Internal viewing essential to fully appreciated the size and layout of the accommodation

Full Description

Entrance Hall (5.23m x 4.98m (17'02" x 16'04"))

Front Living Room ( Guest Bedroom ) (4.62m x 4.52m (15'02" x 14'10"))

Dining Room (4.32m x 3.05m (14'02" x 10'00"))

Family Room (4.88m x 3.05m (16'00" x 10'00"))

Kitchen (3.84m x 2.79m (12'07" x 9'02"))

Shower Room (1.88m x 1.70m (6'02" x 5'07"))

First Floor Accommodation -

First Floor Landing (4.27m x 1.93m (14'00" x 6'04"))

Bedroom One ( Front ) (4.62m x 4.52m (15'02" x 14'10"))

Bedroom Two (4.32m x 3.05m;0.00m (14'02" x 10;00"))

Inner Hall (5.89m x 0.81m (19'04" x 2'08"))

Bedroom Three ( Inner Rear ) (4.88m x 2.08m (16'00" x 6'10"))

Bedroom Four ( Rear ) (3.84m x 2.79m (12'07" x 9'02"))

Family Shower Room (1.88m x 1.78m (6'02" x 5'10"))

Viewing & Disclaimer

Viewing
Please contact us on 02392830888 if you wish to arrange a viewing appointment for this property, or require further information.

Disclaimer
Christies Estate Agents - PO5 endeavour to maintain accurate depictions of properties in Virtual Tours, Floor Plans and descriptions, however, these are intended only as a guide and purchasers must satisfy themselves by personal inspection.

IE8 Alert! Cookie Alert!

To get the best possible experience using our website we recommend you upgrade to a modern web browser. More info

Location
Radius
Min Beds
Min Price
Min Price
Max Price
Max Price
Location
Radius
Min Beds
Min Price
Min Price
Max Price
Max Price